ひいらぎ館

賃料 28万円

1/41

物件番号「20355」をお伝えください。

電話でお問合せ LINEでお問合せ

物件情報

物件名 ひいらぎ館
賃料 28万円
共益費_管理費 0円
敷金 1ヶ月
礼金 1ヶ月
住所1
武蔵野市吉祥寺南町4-7-13 地図
タイプ アパート
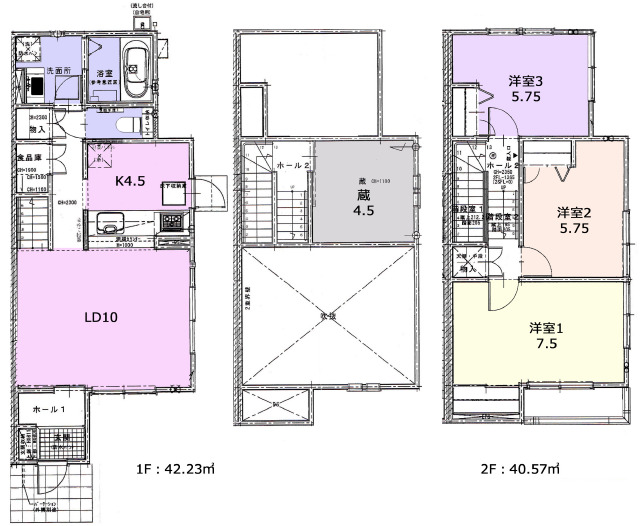
間取 3SLDK
交通 中央線 吉祥寺駅まで 徒歩12分
井の頭線 吉祥寺駅まで 徒歩12分
西暦築年月 2014/10
面積 82.8m²
建物構造 木質パネル工法
階/階建 2階建
向き
諸費用(全て) 火災保険料(2年間) 20,000円
鍵交換費用無し -
ホームマイスター24 16,500円
初回保証料 168,000円
保険 要 2年
物件を見てひと言 ※専有面積82.8㎡の3SLDK 敷地内駐車場1台付き 豪華対面式システムキッチン 食洗器付き 勝手口有り 全室エアコン&照明完備 浴室乾燥機&ウォシュレット&独立洗面台&室内洗濯機置場 全室収納付き 南向きで陽当りも良好 ミサワホーム施工 “蔵のある家” 禁煙 ペット不可 電子ピアノ相談 南部不動産の管理です
契約期間 2年
更新料 新賃料の1ヶ月分
引渡時期 相談
現況 既に空室です
取引態様 一般媒介
仲介手数料 1.1ヶ月
保証会社詳細 必須 日本セーフティー 初回保証料:月額総額の60%:月次保証料800円です
間取詳細 (1F)K4.5、(2F)S4.5、(2F)S4.5、(2F)洋5.75、(2F)洋5.75、(2F)洋7.5
小学校区 武蔵野第3小学校
中学校区 武蔵野第3中学校
ココがポイント ★吉祥寺南町4丁目 
★ひいらぎ館102号室 
★1~2階のメゾネット 
★南向きで陽当り良好
★敷地内駐車場1台付き 
★豪華システムキッチン 食洗器付き
★勝手口有り
★独立洗面台付 バス・トイレ別♪ 
★TVモニター付
★エアコン完備 ウォシュレット付き♪ 
★追焚&浴室乾燥機
★陽当りの良いバルコニー付き
※掲載されている物件データが現状と異なる場合は現状を優先します。

更新情報

情報更新日 2025年12月13日
次回更新予定日 2025年12月14日

物件番号「20355」をお伝えください。

電話でお問合せ LINEでお問合せ
電話 メール LINE
簡易お問合せ

お名前


メールアドレス


問合せ内容