Webコメント | ★三鷹市井の頭5丁目 ★EXAM(エグザム)吉祥寺403号室 ★オートロック完備で最上階角部屋 ★エレベーターと駐輪場は有りません ★デザイナーズマンション ★宅配BOXあり TVモニターホン付き ★システムキッチン完備 ★浴室乾燥機 独立洗面台付き ★井の頭公園が身近です(*^-^*) |
||
物件名 | EXAM(エグザム)吉祥寺 | 号室 | 403 |
交通 | 中央線 吉祥寺駅まで 徒歩10分 井の頭線 吉祥寺駅まで 徒歩10分 井の頭線 井の頭公園駅まで 徒歩10分 |
住所1 | 三鷹市井の頭5-12-19 |
家賃 | ¥94,000 | 共益費 | ¥5,000 |
礼金 | 1ヶ月 | 敷金 | 1ヶ月 |
取引態様 | 一般媒介 | 物件番号 | 18286 |
階/階建 | 4階/4階建 | 面積m2 | 22.03m2 |
構造 | 鉄筋コンクリート造 | 火災保険 | 要加入 |
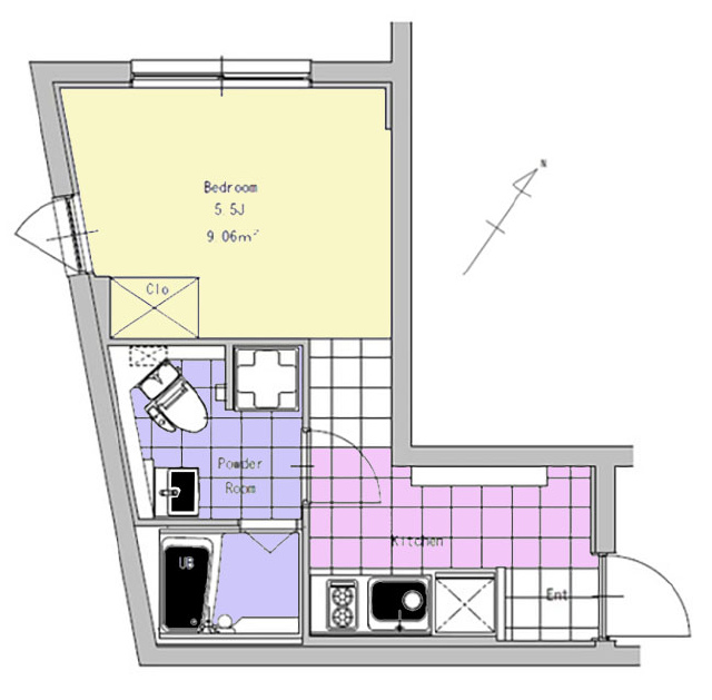
間取 | 1K | 間取詳細 | 洋5.5、K2.5 |
西暦築年月(築年数) | 2017/01 ( 築8年 ) | 向き | 北西 |
タイプ | マンション | 引渡時期 | 令和07年11月上旬 |
更新料 | 新賃料の1ヶ月分 | 保証会社利用 | 必須 日本セーフティー 初回保証料月額賃料等の50%:月次保証料1,940円になります。 |
入居費用 | ¥525,240 | めやす賃料 | ¥102,917 めやす賃料について |
賃料履歴 | 諸費用 | 火災保険料(2年間)¥20,000 鍵交換費用¥33,000 24時間あんしんサポートサービス(2年間)¥22,000 鍵交換費用¥49,500 |
|
最寄施設 | ファミマ井の頭4丁目店まで 徒歩1分 40m | 現況 | 既に空室です |
特色 | オートロック完備、宅配BOX付、TVモニターホン付、バス・トイレ別、室内洗濯機置場、独立洗面台付き、☆システムキッチン♪、エアコン付、礼1・敷1!、お洒落な外観♪、角部屋!、保証会社利用必須、クローゼット付、駅より徒歩10分圏内、浴室乾燥機能付き、ウォシュレット完備♪、2階以上のお部屋♪、最上階、24時間換気システム、光対応済、短期解約違約金有り(1年未満の解約の場合1か月が掛かります)、退去時ハウスクリーニング¥41,800円・エアコンクリーニング¥16,500円になります。 | ||
詳細 |
![]() 間取図です♪ ![]() 建物の外観です♪ ![]() エントランス内 ![]() 洋室5.5帖 ![]() 4階北西向き ![]() エアコン&収納 ![]() お洒落な内装 ![]() システムキッチン完備 ![]() 玄関ホール ![]() 洗面&トイレ ![]() 豪華なバスルーム ![]() エントランス ![]() お洒落な外観 ![]() 照明も素敵ですね |
||
掲載されている物件データが現況と異なる場合は現況を優先します。 |